次世代クリエーター限定

創作スペース付 シェアハウス

入居者募集

家賃|27,000円〜30,000円 (共益費 1.3万円)

JR三鷹駅徒歩15分|JR・京王井の頭線吉祥寺駅徒歩17分

= 説 明 会 =
2026年2月14日(土) 13:30~15:00

会場:三鷹ネットワーク大学 External Link

(説明会は終了しました)

OPEN HOUSE

2026 3.13 fri - 14 sat
10:00-16:00

案内ツアー

午前の部|10:00~11:00 午後の部|14:00~15:00

< 各回 定員5名程度 >

案内ツアーお申込フォーム

オープンハウス開催期間中(3月13日・14日の10:00-16:00)は、予約なしでも内覧可能です!

CONCEPT

都立井の頭恩賜公園からほど近い
緑豊かで閑静な住宅地に、
地域交流施設が併設された
次世代を担う若手クリエーター限定の
シェアハウスがオープンします。

創作活動が行える環境を備えたシェアハウスで
クリエーターが互いに刺激し合い
地域とつながりながら成長する
スタートアップ支援の拠点です。

クリエーターが地域と交流しながら
「共に創り、共に育てる」
クリエーティブ・ヴィレッジをめざし
{暮らす} {つくる} {つながる} の3つの機能で
将来を担う皆さんの活動を支援し加速させます。
ご参加をお待ちしています!

この物件は公益目的のため、三鷹市が所有する土地・建物を貸主となるNPO法人ネットワーク大学推進機構が無償で借り受け、公的支援を受けて運営するものです。なお、物件に関するお問い合わせ先は、賃貸の仲介と管理を行う(有)北海商事となります。

Living

創作活動が軌道に乗るまでのスタートアップ支援として、リーズナブルな家賃で住環境を提供します。クリエーターの経済的負担を軽減し、創作活動に打ち込むことができる環境を提供します。

Creating

クリエーターに一定の創作活動が可能な環境を提供するほか、入居者同士や地域住民との交流を通じた、新たな価値を創造する「きっかけ」となる場を提供します。

Connecting

クリエーターや地域住民、ボランティアなど「人と人」「人と地域」がつながり、交流する場として、併設の地域交流施設を中心に「地域の縁側」のような居心地の良い空間を、居住者と地域住民に提供します。

What’s Awesome

三鷹ヴィレッジ
森のアトリエの魅力

1

立地環境

JR三鷹駅から徒歩15分、JR吉祥寺駅・京王井の頭線吉祥寺駅から徒歩17分と新宿や渋谷へのアクセスが良く、都立井の頭恩賜公園や玉川上水など豊かな緑に囲まれた閑静な環境です。周辺には三鷹の森ジブリ美術館や山本有三記念館などの文化施設も多くあります。

2

リーズナブルな家賃

居住者となるクリエーターの経済的負担を軽減し、創作活動に打ち込むことができるよう、地域交流活動等への積極的な参加を条件に、リーズナブルな家賃で住環境を提供します。

3

居住者交流

次世代を担う若手クリエーター限定のシェアハウスで、クリエーター同士の交流により、時に刺激を受け合いながら、時に協力し合いながら、一人ではできない創作活動が実現できます。

4

地域交流

併設する地域交流施設を中心に、地域住民やボランティア、町会などと交流・活動する機会を提供します。子どもからご年配まで多世代との交流で、これまでとは違った成長の機会が得られます。

5

共同生活支援

居住者の共同生活等を支援する管理人「コミュニティ・コーディネーター(CC)」が、併設の地域交流施設に週5日常駐します。CCが共同生活の悩みや相談を受け付け、また、居住者同士や地域との交流を促進し、生活や活動をサポートします。

6

創作活動支援

共用の創作活動スペースとして、シェアハウス内に創作活動で汚しても良い部屋(創作活動室)を用意するとともに、一定の条件の下で併設の地域交流施設を創作活動や作品発表に利用できます。また、三鷹市をはじめ関係団体や協力団体と連携し、作品の発表等を支援します。

OUTLINE

名称
三鷹ヴィレッジ・森のアトリエ
住所
三鷹市下連雀一丁目31番21号・22号
種類
シェアハウス 全6室(*全3棟-各棟2室/1室は1名のみ)
最寄駅
・JR中央線 三鷹駅 徒歩15分
・JR中央線/京王井の頭線 吉祥寺駅 徒歩17分
家賃等
・家 賃:27,000円~30,000円
・共益費:13,000円
(水道光熱費・インターネット利用料含む。※2026年4月分の家賃・共益費は無料)
・保証金:30,000円
(退去時にクリーニング費用として全額償却)
・敷金・礼金:なし
・仲介手数料:なし(貸主が負担)
主な設備
共用部(各棟共通): 創作活動室、キッチン、浴室、温水洗浄トイレ、エアコン、照明器具、冷蔵庫、洗濯乾燥機、電子レンジ、インターネット(wi-fi)
専用個室(共通): 鍵、クローゼット、エアコン、照明器具、ベッド、インターネット(wi-fi)
駐輪場(共通): 敷地内利用可(無料)
駐車場(共通): なし
契約形態
定期借家契約(3年間)
※契約期間満了後は、更新なく契約が終了します。なお、ヒアリング審査・貸主借主協議の上、1回に限り再契約が可能です。
入居可能日
2026年4月18日(土)~2026年5月31日(日)までの期間中に入居
特記事項
・1部屋に1人のみ入居可能
・1棟につき2人(2部屋)が入居
ROOMS

物件間取り図

三鷹ヴィレッジ・森のアトリエ
(リフォーム工事 2026年2月末完了予定)

A-101|A-102

A-101 Floor Plan
1F
A-102 Floor Plan
2F

B-101|B-102

B-101 Floor Plan
1F
B-102 Floor Plan
2F

B-103|B-104

B-103 Floor Plan
1F
B-104 Floor Plan
2F

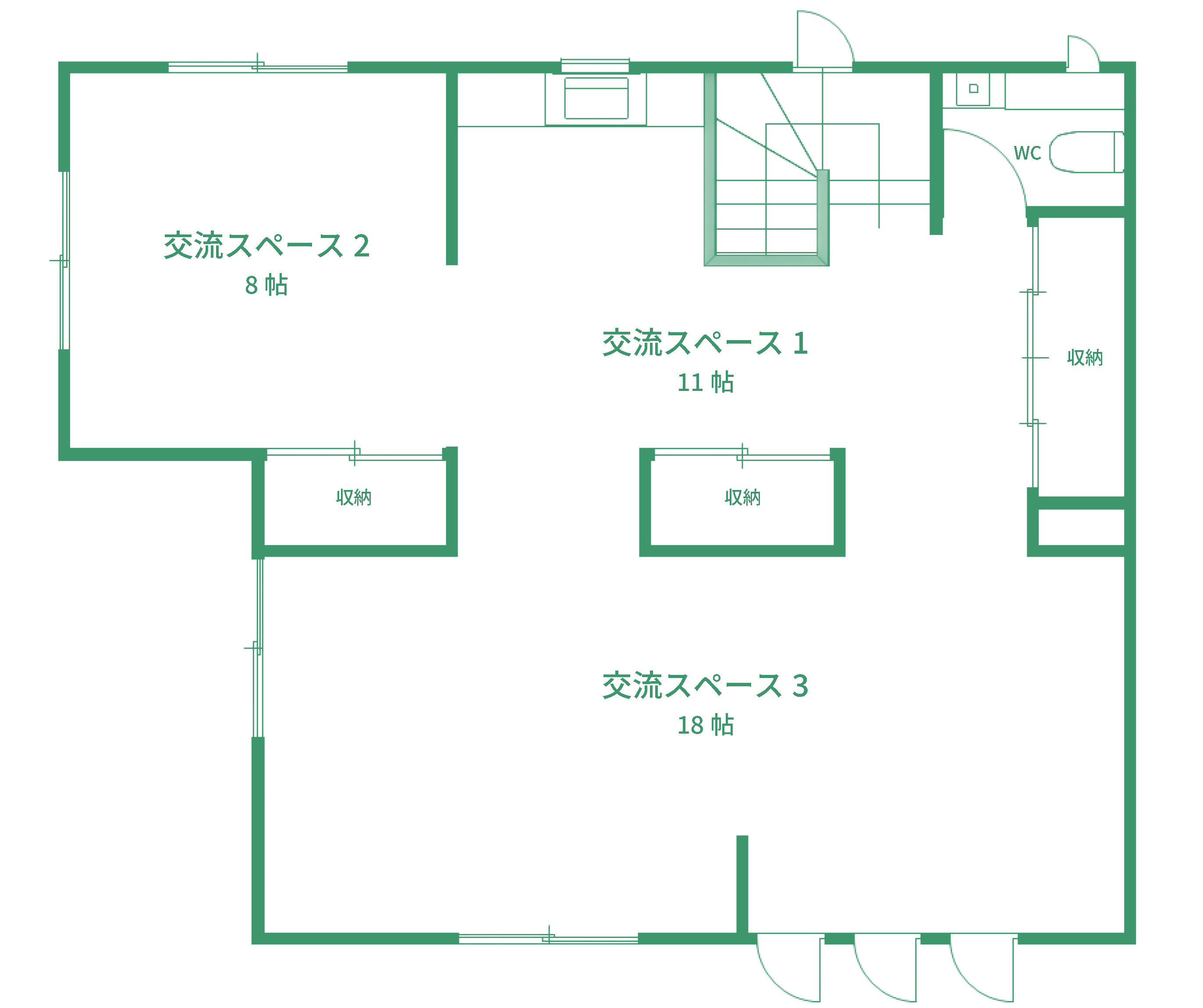
併設の地域交流施設

Facility 1F Floor Plan
1F
Facility 2F Floor Plan
2F

物件配置イメージ

Site Image
DESCRIPTION

入居申込資格、入居者選考、居住の条件など、一般の賃貸物件とは異なる点がありますので、必ず『募集要項(PDF)』を確認してください。

入居申込期間
2026年2月17日(火)〜2026年3月22日(日)
入居申込資格
  • 年齢が30代前半までの単身の方
  • クリエーティブな活動を生業とすることを目指している方で、ポートフォリオなど活動実績が確認できる資料を提出できる方
  • 他の入居者や地域住民と良好なコミュニケーションが取れる方
  • 地域活動(町会などの地域団体が主催する活動)への参加意欲がある方 等
居住の条件
  • 単身での居住
  • 日常生活で想定される範囲を超える音、臭い、振動の発生する作業等の禁止
  • クリエーターとしての創作活動の継続
  • 他の入居者や地域住民との交流、地域団体等の活動への積極的な参加・協力
  • 活動報告会への参加及び活動報告(年1回) など

FLOW

01

入居申込み(応募)

2026年2月17日(火)〜3月22日(日)まで

02

書類選考

03

書類選考結果通知

※3月下旬
※書類選考合格者には「04|ヒアリング選考」の面談日時を合わせてご案内します

04

ヒアリング選考

2026年4月4日(土)・4月5日(日)

05

入居者決定・通知

2026年4月10日(金)頃

06

入居者事前交流会

2026年4月18日(土)

07

賃貸借契約締結・入居

2026年4月18日(土)〜5月31日(日)まで

HOW TO APPLY

まずは ⬇︎「お問合せフォーム」よりご連絡ください。このホームページから直接応募はできません。

「お問合せフォーム」は三鷹市内に所在する本物件の仲介・管理業者
「(有)北海商事」のホームページにリンクします。

HOW TO VIEW

原則として、説明会に参加した方 又は 物件見学(内見)を終えた方に入居申込方法を個別に案内します。次の01〜03のいずれかにご参加ください。お申込み方法は以下のとおりです。

01

説明会|※内見はできません

2026年2月14日(土) 13:30~15:00

会場:三鷹ネットワーク大学External Link

(説明会は終了しました)

02

オープンハウス

2026年3月13日(金)・14日(土)
10:00~16:00
会場:現地

オープンハウス開催期間中(3/13・14の10:00-16:00)は、予約なしでも内覧可能です!

予約制の案内ツアー

2026年3月13日(金)・14日(土)
10:00~11:00|14:00~15:00

物件情報のほか、事業コンセプトなどスタッフが詳しくご案内します。
「案内ツアーお申込フォーム」⬇︎ボタンから承ります(各回 5名程度)。

案内ツアーお申込フォーム
03

個別内見

2026年3月7日(土)〜21日(土)

時間は個別に調整
(※日・祝日を除く)

⬇︎お申し込みは下記の「お問合せフォーム」から承ります。

注意事項

部屋を指定しての申し込みはできません。部屋割りは貸主が決定します。

部屋割りや入居者のマッチングにより、選考基準を満たしている場合でも入居いただけないケースがあります

先着順ではなく、選考により入居者を選定します。

ポートフォリオなど提出された資料は返却できません。

審査の内容は開示できません。また、審査内容に係る質問や異議は一切受け付けることができません。

OWNER & PARTNERS

NPO法人 三鷹ネットワーク大学推進機構 ロゴ

NPO法人
三鷹ネットワーク大学推進機構

本施設の運営主体(貸主)です。三鷹市から土地・建物を無償で借り受け、施設の管理・運営、入居者の募集・選考、地域交流事業などに関する総合調整等を担います。また、関係団体と連携しながら、本事業の目的である若手クリエーターのスタートアップ支援と地域活性化を具体化する役割を担います。

三鷹市 企画部企画経営課 ロゴ

三鷹市

本施設の土地・建物の所有者として、建物の改修や大規模な修繕を担うとともに、運営主体である三鷹ネットワーク大学推進機構による施設運営が円滑になされるよう協力や支援を行います。また、次世代を担う若手クリエーターのスタートアップ支援と地域活性化について、運営主体と連携・協力して取り組みます。

一般社団法人 ミタカエリアデザイン ロゴ

一般社団法人
ミタカエリアデザイン

三鷹ネットワーク大学推進機構からの委託を受け、シェアハウスでの共同生活の支援や若手クリエーターと地域をつなぐ管理人「コミュニティ・コーディネーター(CC)」の役割を担います。クリエーティブな分野と地域活動の双方に豊富な経験とネットワークを有している団体です。

有限会社 北海商事 ロゴ

有限会社
北海商事

このシェアハウスの賃貸仲介と管理を担う不動産会社です。本施設からほど近い場所に事務所が所在し、不動産業務のほかに修繕からリノベーション等の建築業務も取扱う、創業50年の地域密着型の事業者です。

お問合わせはこちら